THE CABIN IN THE WOODS
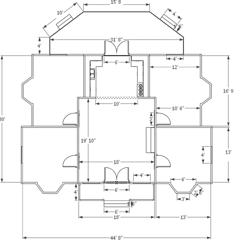
Elements from a production design package for a conceptual design of The Cabin in the Woods.
PROD 762 Studio II
Savannah College of Art and Design
Prof. Kristen Adams
Fall 2024












Savannah College of Art and Design
Prof. Kristen Adams
Fall 2024












